Woningopties begane grond

Per woningtype bieden we je meerdere mogelijkheden om de begane grond van de woning aan te passen aan je eigen wensen. Bijvoorbeeld een uitbouw aan de achterzijde en een gedeelte van de oorspronkelijke garage bij je leefruimte betrekken, zorgt voor een extra ruime woning. Je kunt de verlenging van de garage ook gebruiken om hier de keuken naartoe te verplaatsen om, bijvoorbeeld een extra grote leefkeuken te creëren. Of je garage opsplitsen in een praktische (fietsen)berging en een speelkamer voor de kinderen of juist een fijne werkkamer voor jou of je partner. Genoeg te kiezen.

Meer ruimte

Met een aanbouw en openslaande tuindeuren betrek je de buitenruimte op een natuurlijke manier bij je binnenruimte.

Zo heb je én extra ruimte én extra licht in je woonkamer.

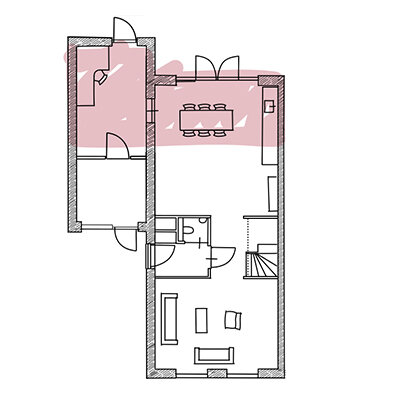
Leefkeuken

Creëer een extra ruime keuken door de helft van de garage bij de kamer te trekken en een uitbouw te kiezen.

Werkkamer

Door je woning aan de achterzijde uit te bouwen en de garage op te splitsen creëer je extra ruimte voor bijvoorbeeld een volwaardige werkkamer op de begane grond.

Even samenvatten. De meest gekozen opties voor de begane grond. Bekijk de opties en uitbreidingsmogelijkheden van jouw woning op de projectwebsite en in de projectbrochure. 

  • Uitbouw woonkamer met 1,2 of 2,4 meter
  • Openslaande tuindeuren of schuifpui
  • Trapkast of laten vervallen trapkast
  • Garage ombouwen tot een speel-/werkruimte en berging

 

Bekijk ook de woningopties van de 1e verdieping en de 2e verdieping. Binnenkijken bij andere nieuwbouwbewoners? Bekijk ons inspiratiemagazine Kies

Cookie policy

Whoon gebruikt cookies om bijvoorbeeld de website te verbeteren en te analyseren, voor social media en om ervoor te zorgen dat u relevante advertenties te zien krijgt. Als u meer wilt weten over deze cookies ga dan naar whoon.nl/privacy. Bij akkoord op deze cookie policy geeft u Whoon toestemming voor het gebruik van optimale cookies op onze websites. Klik op “Instellingen aanpassen” om uw voorkeuren te wijzigen.

Cookies accepteren Instellingen aanpassen